qcWelds
A on-line weld and material tracking system designed for small to mid rage organisations requiring a system to cater for weld and material traceability requirements covering all the facets of your fabrication requirements.
- Un limited number of users
- Material Tracking
- Weld Tracking
- Progress Reporting
NOTE: this module can be configured to handle multiple sub contracting fabricators, allowing for the complete tracking and amalgamation of each sub contractors fabricated data.
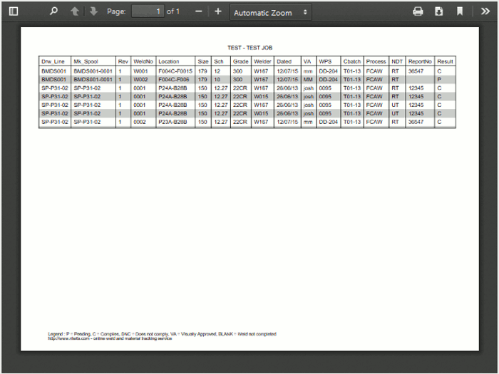
The system allows for full depth analysis and reporting of all stages of your fabrication and assembly processes by recording, monitoring,tracking and reporting on materials and welds performed and allocated for full quality audit and assurance purposes.
We have designed this system to be used anywhere, any time on the shop floor, the office or remotely via web enabled devices giving you the flexibility and versatility to monitor track and report in real time 24 hours a day, 7 days per week.




